Rezidence
Brněnská







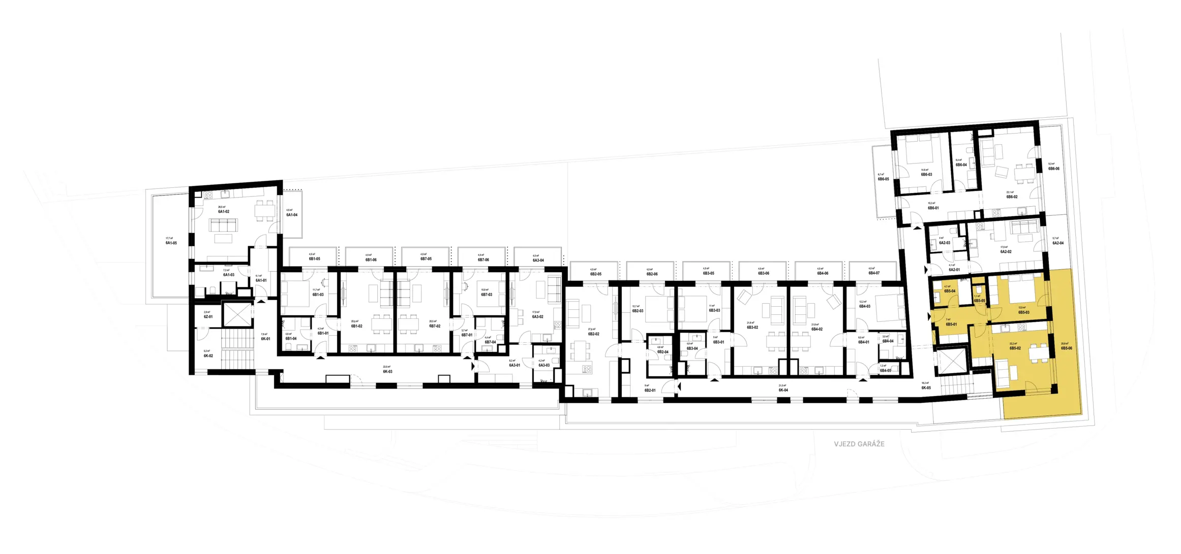
Byt 6B5
ProdanýPodlaží
6NP
Typ bytu
2+kk
Obývací pokoj
22.2 m²
Ložnice
12.51 m²
Koupelna
4.73 m²
WC
1.13 m²
Chodba
7.03 m²
Terasa
20.88 m²
Sklep
3.6 m²
Celková plocha
72.31 m²
Obytná plocha
47.83 m²
Cena bytu je vč. DPH, provize RK a právního servisu
Stáhnout kartu bytu
Poznámka: Celková plocha bytu je uvedena dle nařízení vlády č.366/2013. Vyobrazené zařízení v plánech bytů ( nábytek, aj.) nejsou součástí dodávky. Rozmístění nábytku je pouze ilustrační.